Laurelwood
Laurelwood
Couldn't load pickup availability
Description
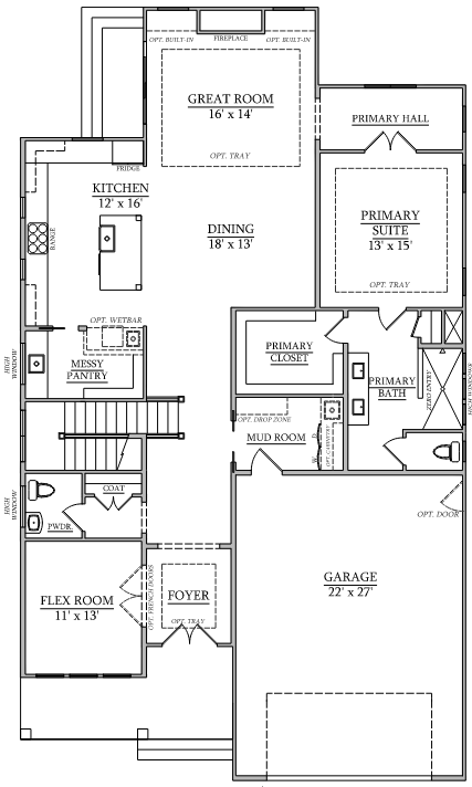
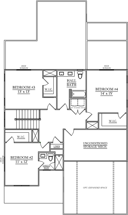
The new standard for farmhouse aesthetics – this plan delivers. Ideal for narrow lot configurations the Laurelwood boasts big areas in a focused foot print. A master suite with separate entry provides for the allusion of your own wing of the house. With secondary bedrooms only on the third floor, space and privacy are both respected. A towering stairwell lined with windows strikes a dramatic entry as you welcome your guests into your home. With flexible space in the great room/ dining multiple seating arrangements are possible to fit your exact needs. A fresh exterior blends multiple materials to create a timeless look.
| Specifications | Square Footage | Dimensions |
|---|---|---|
|
Floors: 2 Bed: 4/5 Bath: 3.5/4 Cars: 2 Garage: Front/ Side |
Heated: 3,278/ 3,764 SF First Floor: 1,848 SF Second Floor: 673/ 1,159 SF Garage: 664 SF Covered Porch: 149 SF Rear Covered Porch: N/A |
First Ceiling: 10' Second Ceiling: 9' Width: 43' 2" Depth: 75' |
