Holloway
Holloway
Couldn't load pickup availability
Description
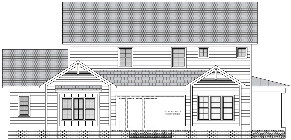
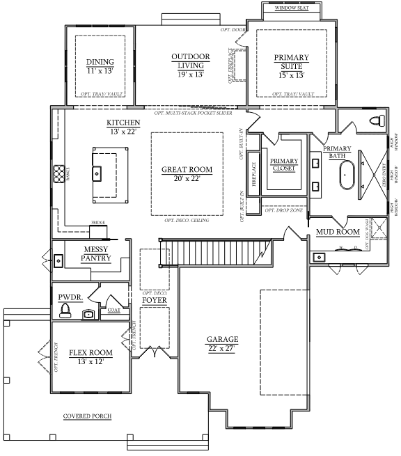
Designed to be the envy of the neighborhood. The Holloway is a stand out plan with simple lines and classic detailing which both carry timeless elegance. The master bathroom acts as your own spa with walk in double shower and focus grabbing free standing tub. Endless 1st floor area allows for effortless hosting without worrying about space. The upstairs loft and wide staircase will for sure be a memorable space, designed to not just impress but to wow. A large mudroom off the garage ensures outdoor clutter and mess stop at your front door.
| Specifications | Square Footage | Dimensions |
|---|---|---|
|
Floors: 2 Bed: 4/5 Bath: 4.5/5 Cars: 2 Garage: Side Load |
Heated: 4,171 SF First Floor: 2,436 SF Second Floor: 1,735 SF Garage: 598 SF Covered Porch: 428 SF Rear Covered Porch: 262 |
First Ceiling: 10' Second Ceiling: 9' Width: 58' Depth: 75' 3" |
